Паровой котел на дровах 1200 кг (1.2 т пара) - 115°С -0,07 МПа / 0,7 кгс/cм² в Лисаковске

Котел паровой 1200 кг 115 С на дровах
Паровой котел 1200 кг 115 С на дровах
Чертеж парового котла 1200 кг 115 С на дровах
Паровой котел 1200 кг 115 С на дровах чертеж
Паровой дровяной котел 1200 кг в час с температурой 115 С
Дровяной паровой котел 1200 кг в час с температурой 115 С
Дровяной жаротрубный котел 1200 кг пара в час 115 С
Жаротрубный котел 1200 кг пара в час 115 С на дровах
Котел паровой 1200 кг пара в час 115 С для влажных дров
Паровой котел 1200 кг пара в час 115 С для влажных дров
Паровой котел 1200 кг пара в час 115 С на сырых дровах промышленный
Промышленный паровой котел 1200 кг пара в час 115 С на сырых дровах
Топка подовая парового котла 1200 кг 115 С на дровах
Подовая топка парового котла 1200 кг 115 С на дровах
Чертеж дровяного парового котла 1200 кг 115 С
Дровяной паровой котел 1200 кг 115 С чертеж
Котел паровой 1200 кг 115 С на дровах
Чертеж парового котла 1200 кг 115 С на дровах
Паровой дровяной котел 1200 кг в час с температурой 115 С
Дровяной жаротрубный котел 1200 кг пара в час 115 С
Котел паровой 1200 кг пара в час 115 С для влажных дров
Паровой котел 1200 кг пара в час 115 С на сырых дровах промышленный
Топка подовая парового котла 1200 кг 115 С на дровах
Чертеж дровяного парового котла 1200 кг 115 С
Цена
по запросу
От 0 ₸ с доставкой до г.
Логотип WhatsApp Связаться
по WhatsApp
  • Непрерывная выработка сухого пара независимо от нагрузки котла
  • Отсутствие температурных расширений обеспечивает надежность конструкции
  • Подпитка котла производится даже холодной водой +5 ºС
  • Удобная очистка поверхностей нагрева без остановки котла

Технические характеристики

МаркаSTEAMEXPERT
ВидПаровой котел КП
Вид топкиРучная, Колосники
Конструкция котлаЖаротрубный
Производительность1200 кг/ч
Производительность1.2 т/ч
Максимальная тепловая мощность0.9 МВт
Диапазон регулирования мощности50-100 %
ТопливоТвердое, Дрова
Низшая теплота сгорания проектного топлива2440 кКал/кг
Влажность топлива40 %
Насыпная плотность ДРОВ350 кг/м³
КПД котла на ДРОВАХ, не меннее78.6 %
Расход топлива401 кг/ч
Расход топлива1.15 м³/ч
Расход условного топлива140 кг/ч
Температура пара, не более110, 115 °С
Давление пара, не более0.07 МПа
Давление пара, не более0.7 (кгс/см²)
Давление пара, не более0.7 бар
Полный объем котла5.4 м³
Объем паровой части0.53 м³
Аэродинамическое сопротивление23.8 (2.38) Па (мм. вод. ст.)
ТягаПринудительная
Объем топочной камеры2.97 м³
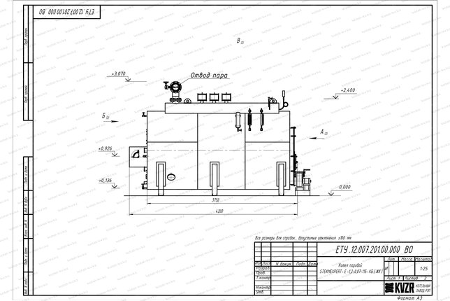
Размер топочной камеры, длина*ширина*высота2400х1100х1050 мм
Активная площадь решетки горения2.52 м²
Присоединительные размеры выхода пара150 Ду
Присоединительные размеры по водяному тракту32 Ду
Присоединительные размеры по дымовым газам / диаметр дымовой трубы500 мм
Габаритные размеры котла, длина*ширина*высота4200х2050х2400 мм
Масса4200 кг
ЭнергоэффективностьВысокая
БрендSTEAMEXPERT

Паровой котел STEAMEXPERT Е 1.2 0.07 115 КБ на дровах в Лисаковске

Промышленный паровой котел на дровах Е 1.2 Лисаковск предназначен для производства пара температурой до 115 °С и давлением 0.07 МПа на технологические нужды для вашего производства. Парогенератором пользуются бетонные заводы при производстве ЖБИ изделий, химические предприятия, строительные организации, воинские части, больницы, бани, предприятия нефтегазовой, кожевенной, пищевой промышленности.

Наши жаротрубные котлы STEAMEXPERT Е 1,2 0,07 имеют следующие преимущества

  • Большая поверхность испарения препятствует выносу капель воды и увеличивает скорость испарения
  • Дополнительное разделение пара от воды в паросборной камере. Повышается качество пара путем улавливания капелек воды из пара
  • Большая паровая камера обеспечивает непрерывную подачу пара при любой нагрузке и сокращает время выхода на заявленную производительность
  • Эффективная конвективная часть котла способствует высокой скорости нагрева воды
  • Отсутствие тепловых расширений благодаря комбинированной компановке
  • Большой водяной объем котла 1,2 т позволяет производить подпитку холодной водой +5° без температурных колебаний
  • Чистка конвективного пакета паром без остановки котла. На задней стенке агрегата находятся лючки для обдувки. Обдувка производится аппаратом для обдувки при минимальной нагрузке и максимальном давлении

Жаротрубный дровяной паровой котел пар 1200 кг низкого давления можно перевести в водогрейный режим, изменив схему подключения.

Устройство парового котла 1200 кг в час на дровах

Промышленный стальной паровой котел КП 1200 на дровах изготавливается в горизонтальном исполнении и состоит из двух цилиндров, паросборника, конвективной части. Цилиндры размещаются один в другом и соединяются фланцами. Внутренний цилиндр – это топочная часть генератора. Межцилиндрическое пространство заполняется водой, сверху приваривается паросборник, на который крепятся 2 предохранительных клапана.

На фронтовой плите имеется дверка для загрузки дров и древесного топлива. В нижней части камеры горения укладываются колосники, на которых происходит горение топлива. К плите крепятся воздуховод и вентилятор для подачи воздуха в топку. Продукты сгорания выводятся чрез дымовую трубу. В основании дымовой трубы установлен предохраняющий клапан.

Вода в цилиндрический котел steam 1200 подается насосом. На паровой промышленный котел желательно устанавливать рабочий и резервный насосы. Дренажи и воздушники производят дренирование трубной системы от шлама и удаление скапливающего воздуха.

Безопасность установки обеспечивает легкоплавкая пробка и клапаны. При повышении давления выше допустимого, срабатывают клапаны, осуществляя автоматический выпуск пара. В случае понижения воды ниже аварийного уровня пробка нагревается, наполнитель пробки плавится, производится сброс давления пара, гасится пламя.

Автоматика парового котла предусмотрена для управления и защиты. В случае отклонения от заданных параметров происходит световой и звуковой сигнал.

Дровяной паровой котел Е 1.2 0.07 115 КБ принцип работы

Дрова сгорают в топке парового котла Е 1 2 0 07, окруженной водяной охлаждаемой рубашкой. Продукты горения проходят через трубный пучок и выходят в верхней части генератора.

Трубный пучок находится за камерой горения. Трубки заполнены водой и омываются горячими газами, за счет чего происходит теплообмен. Пар образуется при испарении нагреваемой воды и собирается в верхней части котлоагрегата, над которой выполнена паросборная камера, далее через паропровод направляется потребителю на технологические нужды.

Монтаж и подключение

Горизонтальный паровой котел 1200 кг в час на дровах для производства пара поставляется блоками максимальной заводской готовности. Агрегат устанавливается в котельной на специально подготовленную ровную поверхность. Подсоединяется по воде, устанавливается запорная арматура на подводящем трубопроводе и отводящем паропроводе, предохранительные клапаны и контрольно-измерительные приборы. Подсоединяется вентилятор и автоматика.

Купить паровой котел Е 1.2-0.07-115 Д на дровах

Для того чтобы купить паровой дровяной котел 1200 кг пара в час в Лисаковске, вы можете сделать заявку по телефону +7-7172-69-59-73, либо оформить заявку онлайн. Менеджеры дадут консультацию по подбору вспомогательного оборудования для выбранных вами моделей и рассчитают стоимость доставки. Транспортирование котлоагрегата и вспомогательного оборудования до объекта осуществляется автомобильным транспортом.

Комплект поставки

Клапан предохранительный КПС
Клапан предохранительный самопритирающийся
3 штуки
Вентилятор
Вентилятор 2 с дв. 2,2/3000
2 штуки
Вентилятор
Вентилятор 3,15 с дв. 0,75/1000
1 штука
Вентиль Ду 20
Вентиль Ду 20
1 штука
Шаровый кран
Кран шаровый
6 штук
Указатель уровня
Указатель уровня
2 штуки
Устройство запорное Ду 20
Запорное устройство Ду 20
2 штуки
Затвор Ду 150
Затвор Ду 150
1 штука
Клапан обратный
Клапан обратный
1 штука
Кран трехходовой ДУ 15
Кран Ду 15
2 штуки
Манометр ДМ2005 Сг 10.0 кгс см2
Манометр ДМ2005Сг 10,0 кгс/см2
1 штука
Манометр МП 160
Манометр МП 160
1 штука
Колосники котлов
Колосник 1100x220
10 штук

Дополнительно потребуется

Дымовые трубы
Цена по запросу
CDM насос
Насос CDM 3-3 (0.37 кВт)
Цена по запросу
Pedrollo насос
Насос Pedrollo CP-132 (0.55 кВт)
Цена 256 351 тг.
Легкоплавкая пробка
Пробка легкоплавкая
Цена 13 180 тг.
Газоход котла
Цена по запросу

Похожая продукция

Котел паровой 1000 кг 115 С на дровах
Паровой котел на дровах 1000 кг (1.0 т пара) - 115°С -0,07 МПа / 0,7 кгс/cм²
Производительность, кг/ч1000
ТопливоТвердое, Дрова
Температура пара, не более, °С110, 115
Давление пара, не более, МПа0.07
Цена 8 006 850 тг.
Котел паровой 1500 кг 115 С на дровах
Паровой котел на дровах 1500 кг (1.5 т пара) - 115°С -0,07 МПа / 0,7 кгс/cм²
Производительность, кг/ч1500
ТопливоТвердое, Дрова
Температура пара, не более, °С110, 115
Давление пара, не более, МПа0.07
Цена по запросу
Котел паровой 1200 кг 115 С на угле
Паровой котел на угле 1200 кг (1.2 т пара) - 115°С -0,07 МПа / 0,7 кгс/cм²
Производительность, кг/ч1200
ТопливоТвердое, Уголь
Температура пара, не более, °С110, 115
Давление пара, не более, МПа0.07
Цена 8 706 708 тг.
Котел паровой 1200 кг 115 С на газе
Газовый паровой котел 1200 кг (1.2 т пара) - 115°С -0,07 МПа / 0,7 кгс/cм²
Производительность, кг/ч1200
ТопливоГаз
Температура пара, не более, °С115
Давление пара, не более, МПа0.07
Цена 8 085 719 тг.
Котел паровой 1200 кг 115 С на дизеле
Дизельный паровой котел 1200 кг (1.2 т пара) - 115°С -0,07 МПа / 0,7 кгс/cм²
Производительность, кг/ч1200
ТопливоЖидкое, Дизель
Температура пара, не более, °С115
Давление пара, не более, МПа0.07
Цена 8 085 719 тг.

Опросные листы

Все опросные листы
Опросный лист на паровой котел
Заполнить опрос

Собственное производство

Котельный завод производит
  • Паровые котлы от 300 кг до 2.5 тонны пара в час
  • Промышленные водогрейные котлы от 150 КВт до 4 МВт на всех видах топлива
  • Механические топки ТШПМ, шурующая планка и ТЛПХ, ленточное полотно прямого хода
  • Циклоны для очистки воздуха и дымовых газов для производств и промышленных отраслей
  • Транспортеры и системы топливоподачи и шлакоудаления
Подробнее о производстве
Собственное производство
Смотреть видео
с производства